GBT554-2008 Marine Double Cross Bollard Type DH
Introduction:
GBT554-2008 Marine Double Cross Bollard Type DH is a type of bollard commonly used in marine applications. It is designed to securely moor ships or vessels in ports, harbors, and other waterways. This bollard has a unique design that consists of two intersecting bars forming a cross shape. The cross shape provides a sturdy base for tying ropes or cables from ships or vessels.
The DH bollard is typically made from high-quality cast steel, which is durable and corrosion-resistant, ensuring it can withstand harsh marine environments. This bollard has a large base plate that is bolted onto a foundation or deck, providing a secure anchor point for ships.
The DH bollard has a high load capacity, meaning it can bear heavy loads without deforming or breaking. It is often used in conjunction with other bollards and mooring equipment to ensure safe and secure mooring of ships and vessels.
Overall, the GBT554-2008 Marine Double Cross Bollard Type DH is a reliable and efficient bollard that is widely used in marine applications. Its unique design and high load capacity make it an ideal choice for securing ships and vessels in ports and harbors.

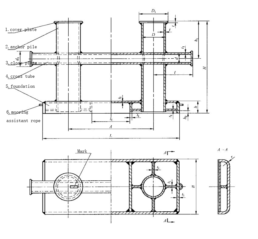
Parameters of GBT554-2008 Marine Double Cross Bollard Type DH:
Nominal Size | SWL (KN) | A | B | d | d1 | D | D1 | h |
200 | 72 | 600 | 360 | 130 | 145 | 203 | 225 | 145 |
250 | 105 | 750 | 450 | 159 | 180 | 245 | 280 | 155 |
300 | 185 | 900 | 540 | 194 | 215 | 299 | 330 | 180 |
Nominal Size | h1 | h2 | H | L | r | t >= | t1 >= | Weight (kg) |
200 | 275 | 60 | 795 | 960 | 20 | 12 | 9 | 181 |
250 | 350 | 60 | 855 | 1200 | 25 | 14 | 12 | 310 |
300 | 420 | 73 | 1160 | 1440 | 30 | 16 | 14 | 576 |
Tel:+ +8613588244516
Email: